Notaria en Retiro
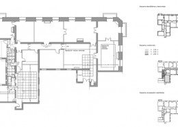
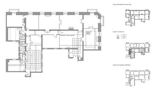
Necesidades: Se necesita una nueva distribución que permita la actividad de notaria en un edificio de viviendas del siglo XIX con protección integral.
Soluciones: Se redacta un proyecto respetuoso con los elementos protegidos por la Comisión para la Protección del Patrimonio Histórico – Artístico de la Ciudad de Madrid (CIPHAN)
Servicios prestados:
Cliente:
Privado
Autores:
Juan Manuel Sanchez Gutiérrez
Situación:
Retiro, MADRID
¿Quieres compartirlo?





